SZHG型回转式固液分离机
概况
SzHG型回转式固液分离机是一种可以连续自动拦截并清除流体中各种形状杂物,以固液分离为目的的装置广泛地应用于城市污水处理、自来水行业、电厂进水口,同时也可以作为纺织、食品加工、造纸、皮革等行业生产工艺中的前级筛分设备,是目前我国先进的固液筛分设备。
结构及工作原理
SzHG型回转式固液分离机主要由机架、传动装置、耙栅系统、传动链、控制系统等组成。
SzHG型回转式固液分离机是由一种独特的耙齿装配成组回转格栅链,在电机减速器的驱动下,耙齿链进行逆水流方向回转运动。
耙齿链运转到设备的上部时由于槽轮和弯轨的导向:使每组耙齿之间产生相对自清运动,绝大部分固体物质靠重力落下,另一部分则依靠清扫器的反向运动把粘在耙齿上的杂物洗刷干净。
按水流方向耙齿链类同于格栅,在耙齿链轴上装配的耙齿间隙可以根据使用条件进行选择。当耙齿将流体中的固态悬浮物分离后可以保证水流畅通流过,整个工作过程是连续的,也可以是间隔的。
主要特点
◆结构紧凑一体化,自动化程度高(通过PLC微电脑控制系统控制设备的运行),能耗省,噪声低,分离效率高。
◆连续除污无堵塞,排渣干净。
◆耐腐蚀性好(所有运动部件均为不锈钢或尼龙)
◆运行安全,传动系统中设有机械过载保护和电气过载保护。

型号说明
主要技术参数
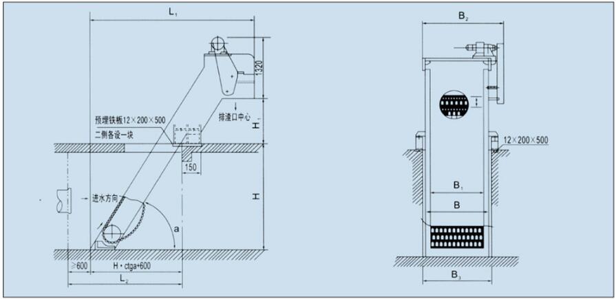
外形安装尺寸
外形安装尺寸
安装示意图
土建埋件数
原理图
订货须知
订货时请提供土建渠宽、渠深、排渣高度、安装角度、耙齿栅隙等技术参数。
订货时注明耙齿、机架的材料要求。
须配套电控箱的应注明控制方式。
如配套皮带输送机、螺旋输送机、螺旋压榨机、无轴螺旋输送压榨一体机,订货时请注明
并联机在安装形式上与单机完全一样。






